民用建筑电气设计标准
编号:GB51348-2019
颁布时间:2019/11/22
是否常用:是
是否有效:现行有效
分类:建筑防火
附录C
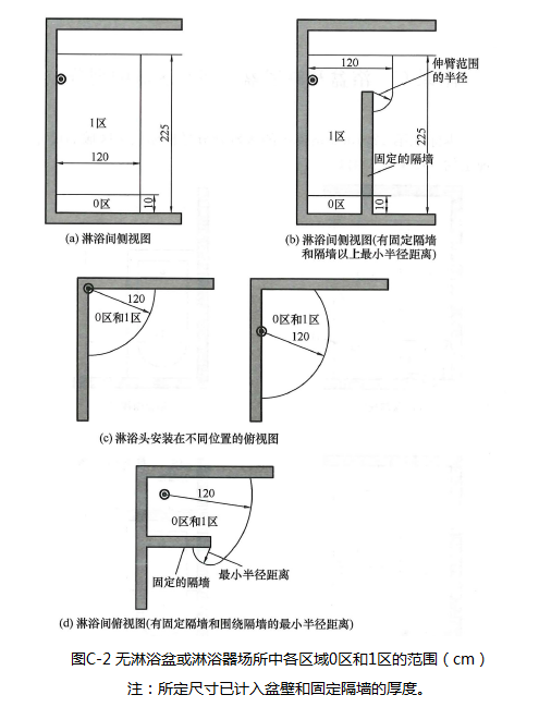
浴盆和淋浴盆(间)区域的划分


0区:指浴盆或淋浴盆的内部;对于没有浴盆的淋浴,0区的高度为10cm。
1区:由已固定的淋浴头或出水口的最高点对应的水平面或地面上方225cm的水平面中较高者与地面所限定区域;围绕浴盆或淋浴盆的周围垂直面所限定区域;对于没有浴盆或淋浴器,是从距离固定在墙壁或天花上的出水口中心点的120cm垂直面所限定区域。
2区:由固定的淋浴头或出水口的最高点相对应的水平面或地面上方225cm的水平面中较高者与地面所限定区域;由1区边界线出的垂直面与相距该边界线60cm平行于该垂直面的界面两者之间所形成区域;对于没有浴盆或淋浴器,是没有2区的,但1区被扩大为距固定在墙上或天花上的出水口中心点的120cm垂直面。