气体消防系统选用、安装与建筑灭火器配置
编号:GJBT-1009
颁布时间:2007/6/1
是否常用:是
是否有效:现行有效
分类:消防设施
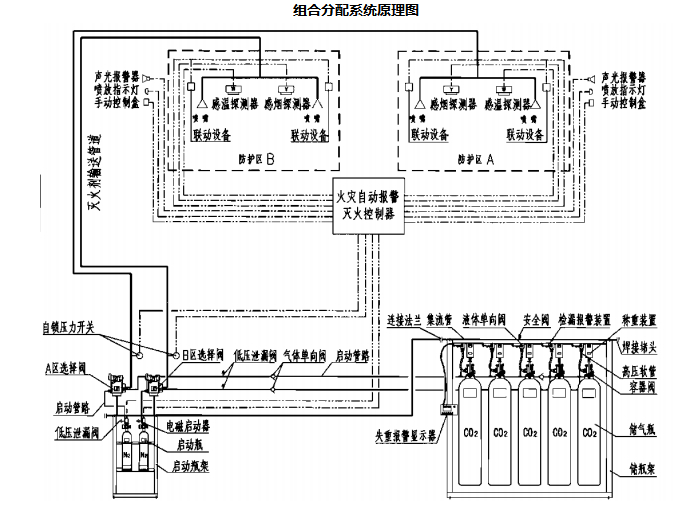
高压二氧化碳灭火系统原理图



说明:
高压二氧化碳灭火系统主要组件功能详见本图集“外贮压式七氟丙烷灭火系统说明”。